Midwestern State University & Texas Tech University System

Bolin Hall Expansion and Renovation

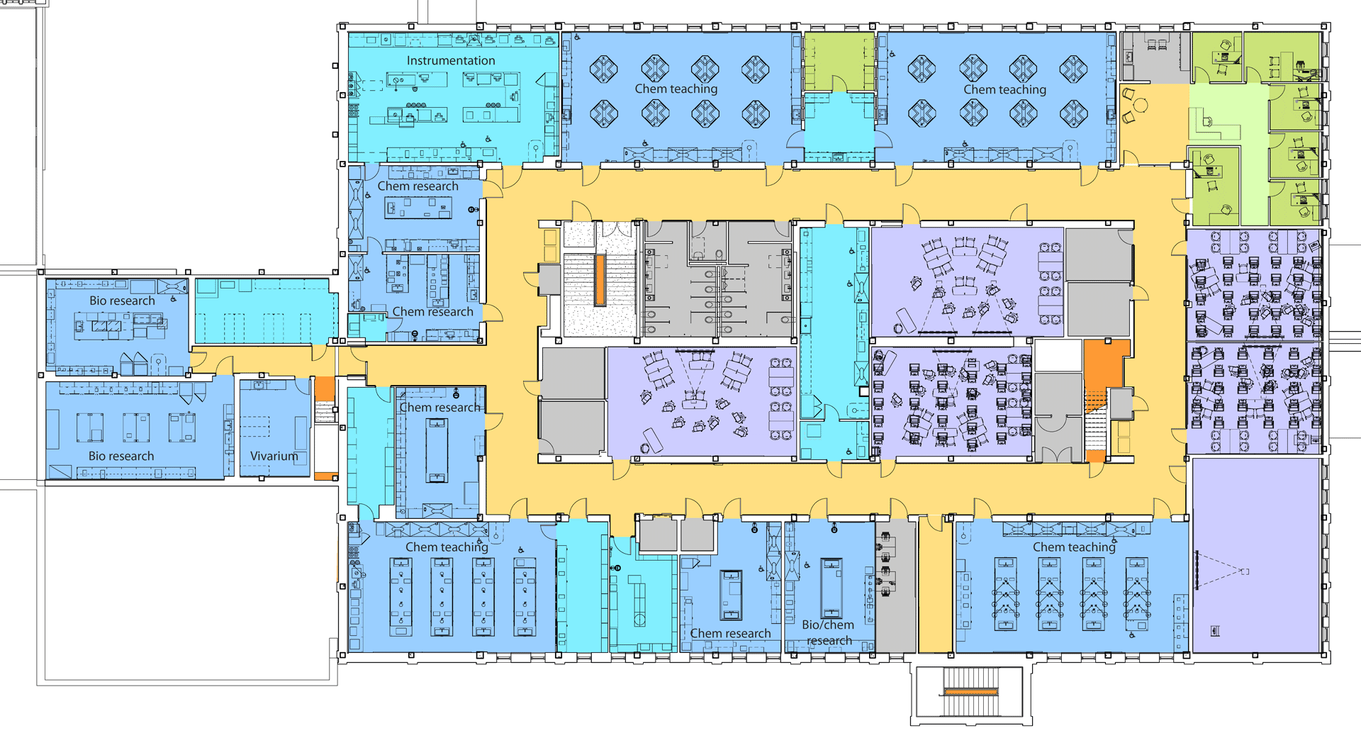
The geosciences, biology and chemistry laboratories and support spaces in Bolin Hall have not kept up with current standards, and an expansion and renovation will allow Midwestern State University to update these labs, as well as the remainder of the spaces that serve the Moody College of Science, Engineering and Mathematics and the Kimball School of Geosciences.  

Originally constructed in 1963, the three-story building is aging and requires a remodel to meet modern student and faculty expectations for teaching and research. Primary goals of the institution are a completed project that allows them to attract and retain students and to compete against peer institutions.

One unique challenge is the need to perform a complete system replacement, life safety upgrades, laboratory upgrades, a modest addition and a general interior refresh while the building is maintained in full operation. A complex phasing plan will allow the remodel to go forward with minimal disruption to building activities. The team’s strategy is to break the building into general zones that roughly align with existing building systems, allowing for a very granular, room by room deployment of the design.

The new addition focuses on greatly needed classroom space, optimized for collaborative project-based learning. An under-utilized tier classroom will be repurposed to form a campus side entry to the building and to create flexible, informal collaborative learning and social areas for students and faculty. Additional specialty spaces include a vivarium, greenhouse and biology museum with a collection of several thousand specimens.

Location

Wichita Falls, TX

Size

103,000 GSF

Services

Laboratory programming, planning and design, and equipment planning

Architect

Corgan